Find active listings in 2 Burrard Place - Team Vince Chan
Back

2 Burrard Place

Vancouver, Downtown VW

  • Pre Sales
  • Address: 1261 Hornby Street, Vancouver, BC
  • Bed: 1 - 2.5
  • Number of Floor: 36
  • Number of Unit: 239
  • Developer: Reliance Properties and The Jim Pattison Group
  • Architect: Neil Denari , IBI Group and Bingham & Hill Architects
  • Year Built: 2026
  • Building Name: 2 Burrard Place
  • Building Designer: Office of Mcfarlane Biggar
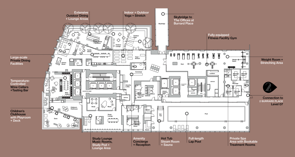
  • Amenities:
    Outdoor Terraces Club One Children's clubhouse Treatment Rooms Music Room Study Lounge Steam and Sauna Room Offices
  • Features:
    All units include parking and storage option of an upgrade to have sliding glass doors to convert the living area into a closed-off bedroom
Welcome to 2 BURRARD PLACE. The epitome of the Euroluxe movement in Canada. The future of downtown luxury living inspired by the world-class cities of Paris, London, Rome. Where design reigns supreme, where quality surpasses quantity, and where statement is everything. Offering the very best of the downtown beach district lifestyle, the very finest in modern design and the highest level of luxury amenities in Vancouver.

2 Burrard Place is a new condo development by Reliance Properties and The Jim Pattison Group currently in preconstruction at 1261 Hornby Street, Vancouver. The development is scheduled for completion in 2026. 2 Burrard Place has a total of 239 units. Sizes range from 482 to 1552 square feet.